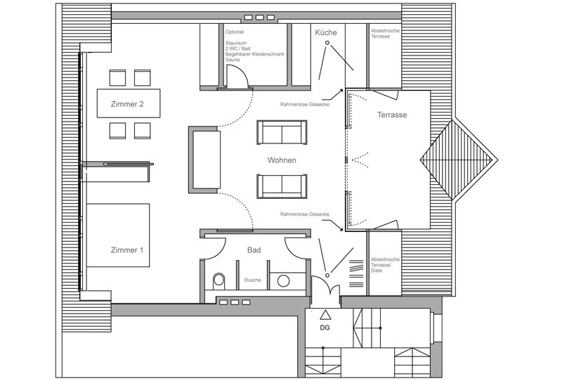
Dachgeschossausbau im Umspannwerk Kreuzberg

Grundrissoptimierung
Ein Klassiker des industriellen Ziegelbaus der 20er Jahre. Das unter Denkmalschutz stehende Gebäude wurde in den 20 Jahren von H.H. Müller entworfen.

Projekttyp: Dachgeschossausbau im historischem Kontext
Leistungen: LPH 1 – 4 HOAI
Zeitraum: 2014 BGF: 85 qm
Auftraggeber: WB Gewerbeimmobilien Spannwerk GmbH & Co. KG